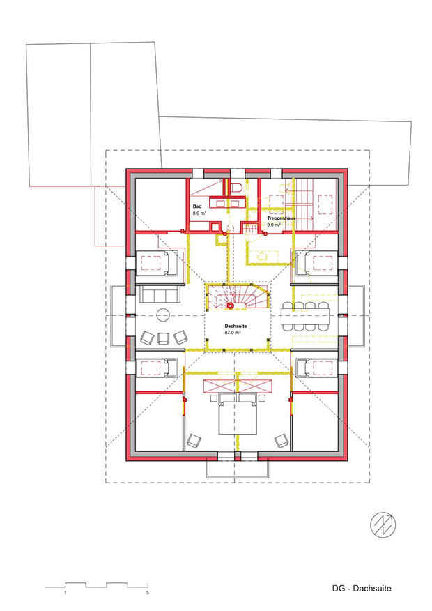
Um das Potenzial eines denkmalgeschützten Hotels in den Bergen einschätzen zu können, wurde diese Studie von einem privaten Investor in Auftrag gegeben. Es galt, dem stark in die Jahre gekommenen und für einen zeitgemässen Hotelbetrieb zu kleinräumig eingeteilten Holzbau eine neue Struktur einzuschreiben. Zudem galt es, das Haupthaus um eine in den steilen Hang gesetzte, kleine Dépendance (Weinbar und stilles Refugium) zu ergänzen.



